ID CP2185494

Casa de vânzare cu 4 camere in Santandrei, Bihor

ID CP2185494

121,000 €

Casă / Vilă cu 4 camere de vânzare
Santandrei
90 mp
2024

Agentia imobiliara CA Imob bills va ofera spre vanzare o casa cu 4 camere in Santandrei, Bihor

Imobilul este in faza de constructie.

Dispune de urmatoarele utilitati: fosa septica, curent trifazic, gaz, apa de la retea.

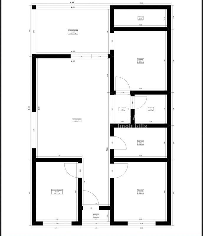
Locuinta masoara o suprafata utila de 90 mp si se compune din: hol de acces, living open space cu bucataria, 3 dormitoare, 2 bai, dressing, camera tehnica si o terasa acoperita de 12 mp fiind amplasata pe un teren de 375 mp.

Proprietatea se vinde finisata la cheie cu gard.

Bugetul alocat pentru finisaje este:

- perchet, gresie faianta: 60 lei/mp

- obiecte sanitare 1500lei/baie

- usi de interior 800 lei/usa

Dispune de locuri de parcare in curte si in fata casei.

Pretul pentru aceasta casa de vanzare din Santandrei este de 121.000 euro

Pentru detalii suplimentare, informatii si vizite, ne puteti contacta la:

Nr. Tel.: 0757601948 - Denisa Năstruț

e-mail: denisa@caimobbills.ro

website: www.caimobbills.ro

CA Imob bills real estate agency offers for sale a 4-room house in Santandrei, Bihor

The building is under construction.

It has the following utilities: septic tank, three-phase electricity, gas, mains water.

The house measures a usable area of 90 sqm and consists of: access hall, open space living room with kitchen, 3 bedrooms, 2 bathrooms, dressing room, technical room and a covered terrace of 12 sqm being located on a plot of 375 sqm.

The property is sold turnkey finished with a fence.

The budget allocated for finishes is:

- Perch, tiles: 60 lei/sqm

- sanitary ware 1500 lei/bath

- interior doors 800 lei/door

It has parking spaces in the yard and in front of the house.

The price for this house for sale in Santandrei is 121,000 euros

For further details, information and visits, you can contact us at:

Tel. No.: 0757601948 - Denisa Năstruț

E-mail: denisa@caimobbills.ro

Website: www.caimobbills.ro

Citește mai mult

  • Număr camere
    4
  • Dormitoare
    3
  • Număr bucătării
    1
  • Număr băi
    2
  • Număr terase
    1
  • Număr locuri parcare
    2
  • Disponibilitate
    Constructie
  • Tip casă
    Individual
  • Stare interior
    Finisat modern
  • Anul finisării
    2024
  • Suprafață utilă
    90 mp
  • Suprafață construită
    125 mp
  • Suprafață teren
    375 mp
  • Suprafață curte
    250 mp
  • Suprafață terasă
    12 mp
  • Acoperiș
    Țiglă
  • Stadiu construcție
    La gri
  • An construcție
    2024
  • Construcție nouă
    Da
  • Tip construcție
    Cărămidă

Facilități

Acoperiș
Apă
Bucătărie deschisă
Centrală proprie
Curent trifazic (380V)
Faianță
Fosă septică
Gaz
Geamuri termopan
Gresie
Iluminat stradal
Încălzire prin pardoseală
Izolație exterioară
Izolație interioară
Mijloace de transport în comun
Nemobilat
Parcare deschisă
Străzi neamenajate
Denisa Năstruț - CA Imob bills
Denisa Năstruț
Agent imobiliar

0786996298


Solicită chiar acum o vizionare
Telefon
Sună acum Solicită vizionare
Necesare:

Site-ul nu poate funcționa corect fără aceste cookie-uri. Vezi cookie-urile

Statistică:

Strângem statistici anonime despre voi, vizitatorii unici, pentru a vă îmbunătăți experiența dumneavoastră. Vezi cookie-urile

Marketing:

Pentru a ne promova mai eficient serviciile noastre, folosim cookies pentru a vă identifica și a vă oferi proprietăți și servicii personalizate. Vezi cookie-urile

Acest site folosește cookies, află detalii. Alege ce tipuri de cookies dorești să permitem: